IN VENDITA – LUCE, ELEGANZA E QUALITA’ COSTRUTTIVA IN UN CONTESTO RECENTE E RISERVATO

33/A, Via Venticinque Aprile, Mezzago, Italia, 20883

Dettagli Principali

Categoria
Residenziale
Tipologia
Appartamento
Anno di costruzione / Ristrutturazione
2009
Piano
1
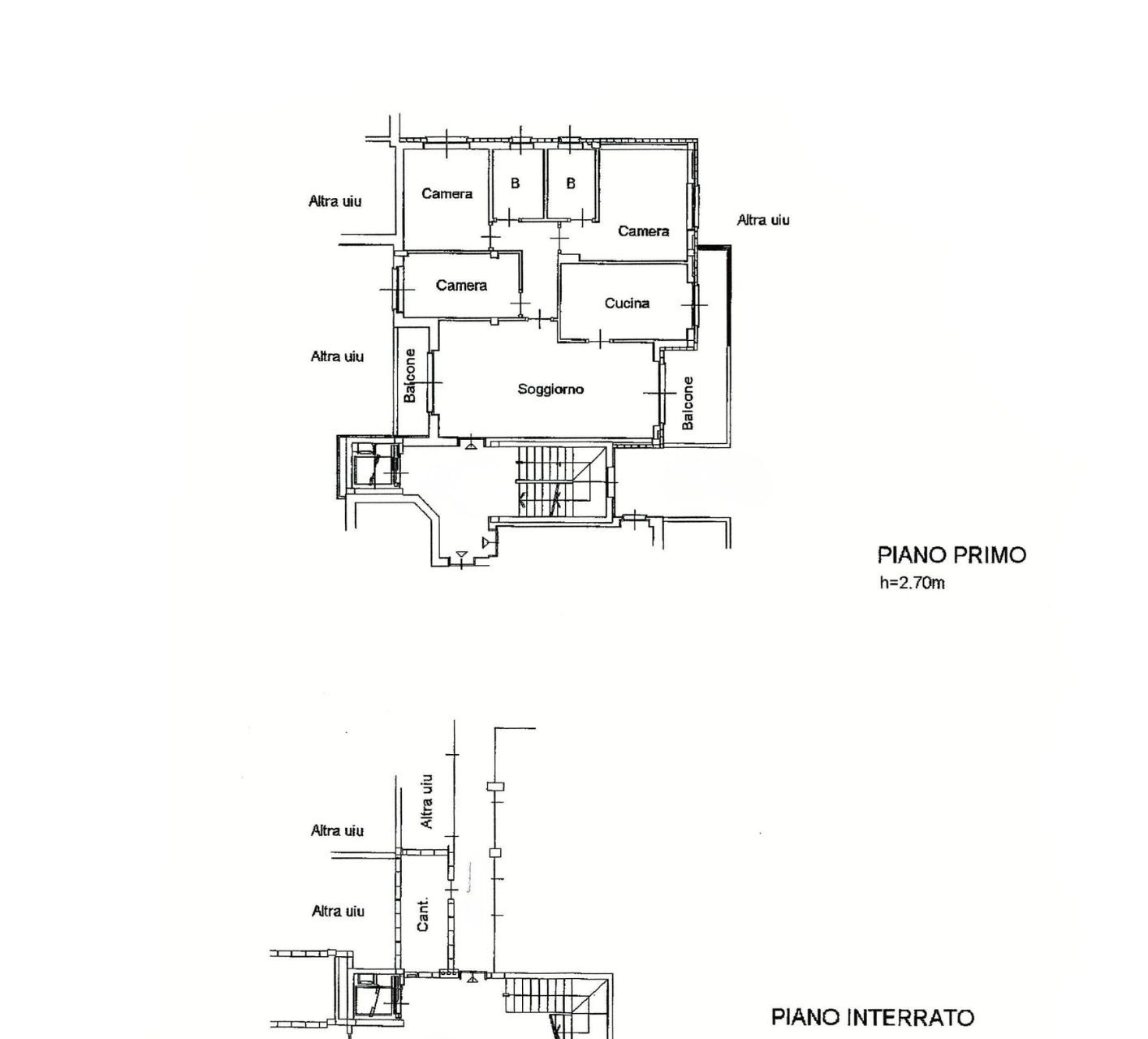
Locali
4
Area / Giardino mq.
Balcone 6,80
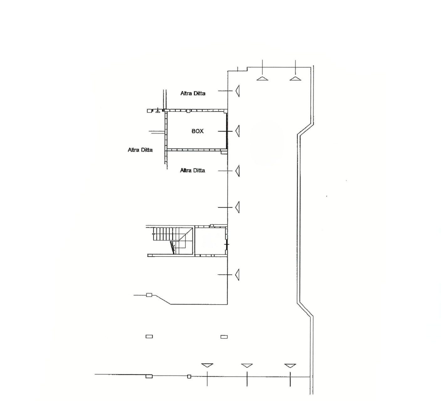
Posti auto
Box Singolo 19,60
Classe energetica
B - Eph 105,65 kWh/m²a

Panoramica

All’interno di un curato complesso residenziale realizzato nel 2009 da primaria impresa di costruzioni, composto da più scale di poche unità abitative — garanzia di tranquillità e privacy — proponiamo in vendita un raffinato appartamento quadrilocale di 115 mq, posto al primo piano e comodamente servito da ascensore.

La casa accoglie con un soggiorno ampio e luminoso, valorizzato dalla doppia esposizione opposta che, oltre a regalare luce naturale per tutta la giornata, garantisce un eccellente ricambio d’aria, assicurando ambienti sempre freschi e salubri. Gli affacci si aprono su un piacevole terrazzo di 13 mq, perfetto per pranzi all’aperto o momenti di relax, oltre a un balcone di 5 mq che amplia ulteriormente lo sfogo esterno. La cucina è abitabile, spaziosa e funzionale, anch’essa con uscita diretta sul terrazzo esposto a sud: uno spazio ideale per vivere la quotidianità con comfort e convivialità.

Un comodo disimpegno accompagna alla zona notte, ben separata e organizzata. Qui trovano spazio tre camere da letto, tra cui una matrimoniale con bagno padronale, oltre a un secondo bagno finestrato di servizio. Gli ambienti risultano armoniosi e accoglienti, impreziositi dalla pavimentazione in parquet presente in tutta l’abitazione, ad eccezione della cucina e dei bagni.

L’appartamento si presenta in condizioni impeccabili, perfetto in ogni sua parte e libero nell’immediato, pronto per essere abitato senza alcun intervento. È dotato di antifurto volumetrico e perimetrale, aria condizionata, antenna satellitare, infissi in legno con doppi vetri, tapparelle motorizzate e zanzariere. Il riscaldamento è centralizzato a gestione autonoma, con impianto di primaria marca, soluzione che garantisce efficienza, comfort costante e ottimizzazione dei consumi. La tripla esposizione sud-est-nord assicura luminosità e ventilazione naturale in ogni stagione.

Completano la proprietà una cantina di 7,5 mq e un box singolo di generose dimensioni (3,50 metri di larghezza per 5,60 metri di profondità), ideale anche per vetture di ampia metratura.

Una soluzione abitativa che unisce qualità costruttiva, comfort moderni e spazi ben distribuiti, inserita in un contesto recente e ben abitato: la scelta perfetta per chi desidera una casa pronta da vivere, capace di coniugare funzionalità, efficienza ed eleganza nel tempo.

 

 

 

CODICE ANNUNCIO : 4LOC.MEZZAGO-IZ266V

Servizi

impianto di riscaldamento
Impianto di condizionamento / raffrescamento
Ascensore
Impianto elettrico
Impianto di allarme
Balcone / terrazzo
Cantina

Planimetrie