IN VENDITA AMPIA SOLUZIONE DI 131 MQ IN LARGO FRATELLI CERVI 1 – MILANO

1, Largo Fratelli Cervi, Milano, Italia, 20131

Dettagli Principali

Categoria
Residenziale
Tipologia
Appartamento
Anno di costruzione / Ristrutturazione
1940/1950
Piano
Piano Rialzato
Locali
5
Area / Giardino mq.
Balcone 6,00
Classe energetica
D - Eph 338,03 kWh/m²a

Panoramica

In vendita – Ampia soluzione di 131 mq in Largo Fratelli Cervi 1 – Milano

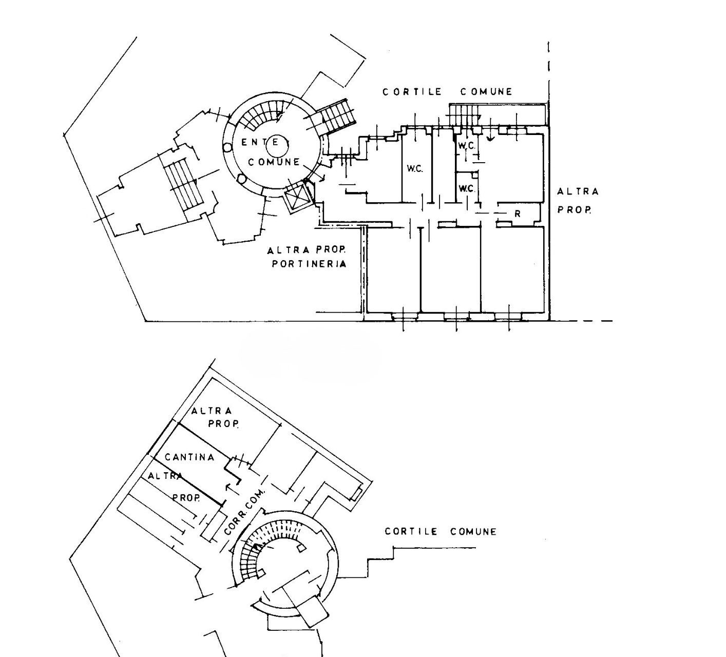
Nel cuore di una zona strategica e perfettamente servita di Milano, proponiamo in vendita un’interessante proprietà situata al piano rialzato di un elegante stabile anni ’40, tipico esempio di architettura milanese dell’epoca.

L’edificio si distingue per il suo ingresso di grande rappresentanza, impreziosito da un colonnato in pietra e da una scenografica scala circolare che collega armoniosamente tutti i piani dello stabile, conferendo prestigio e identità all’intero contesto.

Posizione strategica

La collocazione è uno dei punti di forza: area ottimamente servita dai mezzi pubblici, comoda con i principali collegamenti urbani e circondata da ogni genere di servizio — attività commerciali, scuole, uffici, supermercati e strutture di prima necessità — rendendo l’immobile ideale sia per utilizzo residenziale sia professionale.

Caratteristiche dell’immobile

La proprietà sviluppa una superficie complessiva di 131 metri quadrati ed è attualmente suddivisa in:

  • Cinque locali
  • Tripli servizi
  • Locale cucina
  • Balcone di 6 mq
  • Due cantine per complessivi 11 mq

Elemento distintivo è la presenza di doppio ingresso:

  • uno principale, dall’atrio condominiale, elegante e di forte impatto rappresentativo;
  • uno secondario dal cortile interno, perfetto per garantire funzionalità e accessi separati.

Questa caratteristica rende l’immobile particolarmente flessibile nella distribuzione degli spazi e nell’eventuale suddivisione interna.

Ideale per molteplici utilizzi

La soluzione può essere acquistata sia come ufficio sia come abitazione.

Perfetta per:

  • Studio professionale o associato
  • Sede di rappresentanza
  • Ambulatorio o studio tecnico
  • Trasformazione in appartamento di ampia metratura
  • Investimento da destinare a locazione breve o B&B

Gli spazi generosi e la conformazione interna consentono una ristrutturazione personalizzata, valorizzando al meglio il potenziale dell’immobile.

Una proprietà versatile in un contesto storico di charme

Una soluzione rara per metratura, posizione e doppia destinazione d’uso, inserita in uno stabile di carattere che conserva tutto il fascino dell’architettura milanese anni ’40.

Ideale per chi desidera investire in una zona strategica di Milano, con la possibilità di modellare lo spazio secondo le proprie esigenze professionali o abitative.

 

CODICE ANNUNCIO: 5LOC.MILANO-IZ630V

CODICE ANNUNCIO: UFFICIO.MILANO-IZ630V

Servizi

Impianto elettrico
Balcone / terrazzo
Cantina

Planimetrie