IN VENDITA A BERNAREGGIO LUMINOSO MONOLOCALE CON TERRAZZO E BOX – IDEALE PER INVESTIMENTO!

15, Donizetti, Bernareggio

Dettagli immobile

Categoria
Residenziale
Tipologia
Appartamento
Anno di costruzione / Ristrutturazione
2000
Piano
Secondo
Locali
1
Area / Giardino mq.
Terrazzo
Posti auto
Box Singolo
Classe energetica
D

Descrizione

In una palazzina realizzata nel 2000 composta da sole 12 famiglie, proponiamo in vendita un accogliente appartamento posto al secondo ed ultimo piano mansardato con travi a vista, perfetto per chi cerca comfort, tranquillità e un ottimo rendimento.

L’abitazione, di 45,00mq, si apre su un ampio ambiente open-space ben organizzato, con zona cottura e zona giorno/notte armoniosamente integrate, bagno finestrato e locale lavanderia.
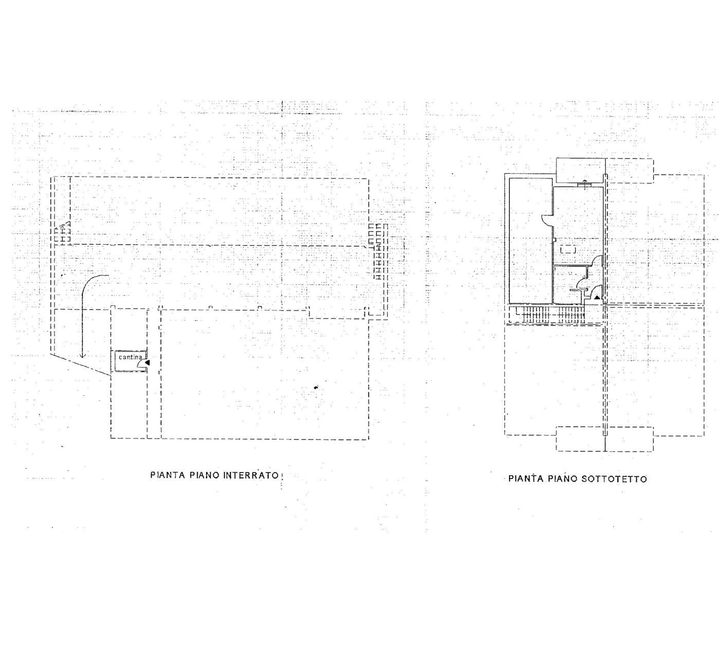
Il terrazzo di 8,00mq, esposto a sud, regala luce e privacy durante tutto l’arco della giornata, mentre il sottotetto di 36,00mq offre prezioso spazio aggiuntivo ad uso ripostiglio.

Completano la proprietà una cantina di 4,00mq e un box auto al piano interrato (5,00 x 3,10 m).

Dotazioni principali:

  • Riscaldamento autonomo a caloriferi
  • Infissi in legno con doppi vetri e zanzariere
  • Persiane in legno
  • Climatizzazione
  • Pavimentazione in ceramica
  • Porta blindata d’ingresso
  • Video citofono
  • Esposizione sud-est, che assicura ambienti sempre luminosi

Ottima opportunità per investitori: l’appartamento viene venduto completamente arredato e può garantire una rendita lorda di circa € 7.200,00 annui.

Un piccolo grande investimento, pronto da vivere o da mettere a reddito sin da subito.

Comfort, luce e praticità — tutto in un unico spazio.

 

 

CODICE ANNUNCIO: MONO.BERNAREGGIO-IZ88V

Servizi

impianto di riscaldamento
Impianto di condizionamento / raffrescamento
Impianto elettrico
Balcone / terrazzo
Cantina

Planimetrie

Immobili simili