IN VENDITA A VIMERCATE – FRAZIONE ORENO DOVE LA STORIA INCONTRA IL CALORE DI CASA

14, Via Augusto Murri, Vimercate, Italia, 20871

Dettagli Principali

Categoria
Residenziale
Tipologia
Villetta a Schiera
Anno di costruzione / Ristrutturazione
1980
Piano
Terra - Su Più Livelli
Locali
4
Area / Giardino mq.
100
Posti auto
Box Doppio 36 mq
Classe energetica
D - Eph 162,53 kWh/m²a

Panoramica

VIMERCATE – Frazione Oreno
Dove la storia incontra il calore di casa.

Nel cuore della rinomata frazione Oreno di Vimercate sorge questa signorile villetta a schiera edificata nel 1980, inserita in un contesto residenziale riservato e armonioso, a pochi passi da uno dei borghi più affascinanti e ricercati della Brianza.

La casa: ambienti che raccontano una storia di famiglia

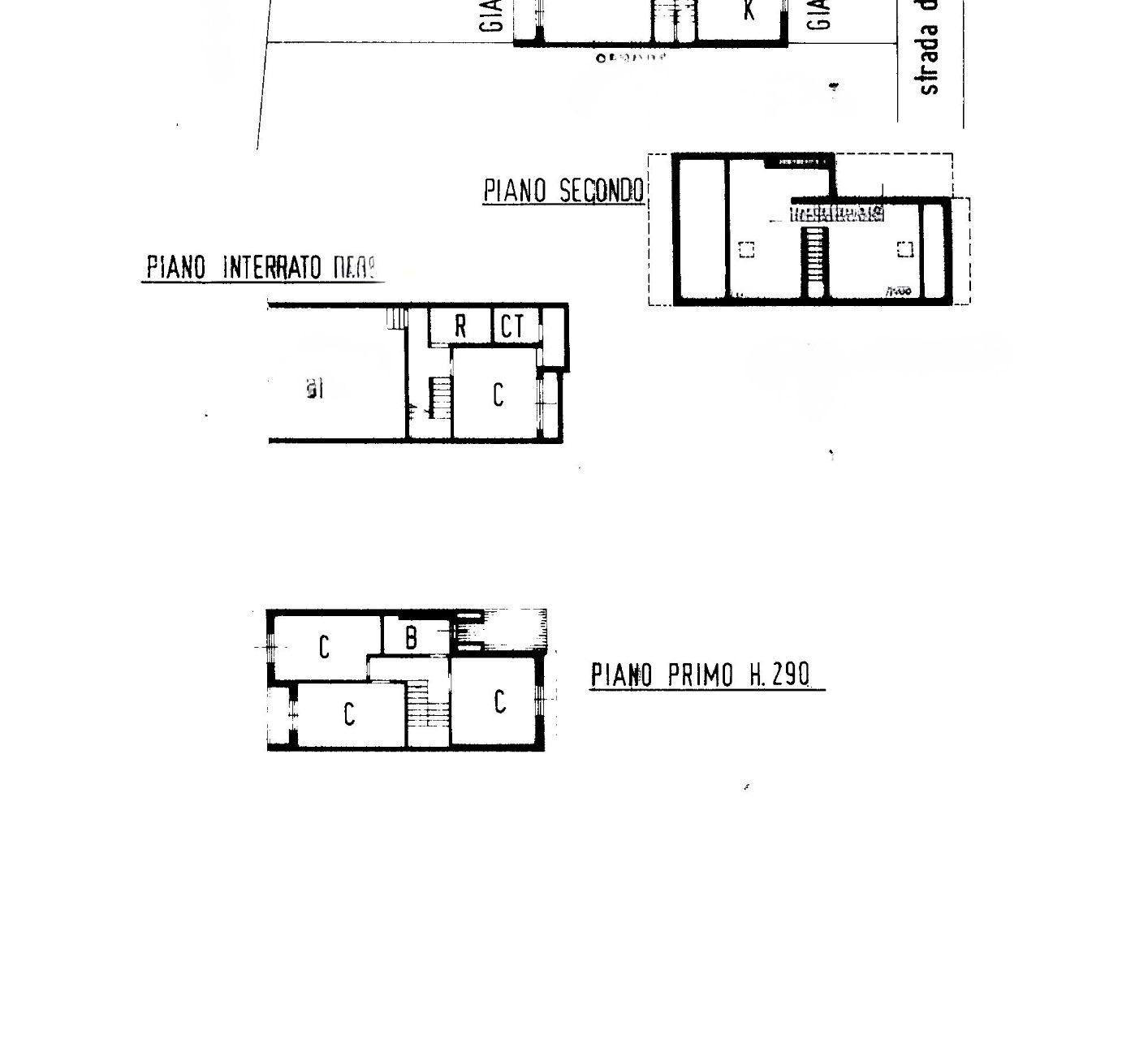
Piano Terra – 74 mq | Accoglienza e convivialità

Varcando la soglia si percepisce subito il senso di casa.
il piano terra accoglie un’ampia cucina abitabile, luminosa e perfetta per la quotidianità familiare, uno spazio dove condividere momenti autentici.

Il soggiorno, esposto ad ovest, si apre con le sue finestre sul portico e sul giardino privato di complessivi 100 mq c.a. la luce del tramonto entra calda e avvolgente, creando un’atmosfera intima e rilassante. Il portico diventa naturale estensione della zona living durante la bella stagione grazie anche al tendone da sole motorizzato.

Completa il piano un comodo bagno di servizio.

Primo Piano – 67 mq | Intimità e riposo

Salendo la scala interna si raggiunge la zona notte, ben distribuita ed ariosa.

Le due camerette sono ampie e confortevoli: una dispone di balcone privato, mentre la camera matrimoniale offre generosità negli spazi e grande luminosità. Ogni ambiente si presta ad essere personalizzato secondo le esigenze della famiglia.

Il bagno finestrato del piano garantisce praticità e comfort quotidiano.

Mansarda – 50 mq | Spazio da immaginare

Il piano mansardato oggi si presenta come un unico grande ambiente, oltre bagno di servizio.

È uno spazio versatile, facilmente divisibile in due ulteriori stanze: può trasformarsi in una suite privata, in uno studio professionale o in un’area dedicata al tempo libero.

Piano Interrato – 40 mq | Funzionalità e carattere

Il piano interrato ospita una taverna accogliente, perfetta per momenti conviviali o hobby personali, oltre a un locale lavanderia, un locale caldaia e un pratico sottoscala ad uso ripostiglio.

Direttamente collegata all’abitazione troviamo l’autorimessa doppia in larghezza di 36 mq con portone motorizzato, un plus di grande valore per comodità e organizzazione quotidiana l’altezza del soffitto sopra la media genera ulteriore spazio ripostiglio.

Dotazioni e migliorie

Nel tempo l’immobile è stato oggetto di interventi mirati che ne aumentano comfort ed efficienza:
infissi in legno con doppi vetri restaurati nel 2022, inferriate, zanzariere, tende da sole motorizzate, caldaia sostituita nel 2016, climatizzazione installata nel 2019 e impianto fotovoltaico da 3 kW del 2012.

Predisposizione canna fumaria per camino o stufa.

 

Oreno: fascino storico e valore nel tempo

La frazione di Oreno è celebre per il suo centro storico di origine medievale, per le corti lombarde perfettamente conservate e per dimore di grande prestigio come Villa Gallarati Scotti e Palazzo Borromeo, simboli di una tradizione nobile e culturalmente viva.

Vivere qui significa scegliere un contesto che unisce eleganza, tranquillità e servizi, con collegamenti rapidi verso Milano e Monza, in un equilibrio perfetto tra riservatezza e comodità.

Un investimento ad Oreno

Questa villetta rappresenta una soluzione ideale per chi desidera indipendenza, spazio e qualità abitativa in un contesto riservato e di pregio. Una casa solida, efficiente e pronta ad accogliere nuovi progetti di vita.

Per informazioni e visite:
Zorzetto Ivan

CODICE ANNUNCIO:  VILLA.ORENO-IZ396V

Servizi

impianto di riscaldamento
Impianto di condizionamento / raffrescamento
Impianto elettrico
Balcone / terrazzo

Planimetrie