AFFITTASI NEGOZIO A VIMERCATE PER RISTORANTE

6, Via Burago, Vimercate, Italia, 20871

Dettagli Principali

Categoria
Business
Tipologia
Attività Commerciale
Anno di costruzione / Ristrutturazione
2019
Piano
Terra
Locali
1
Classe energetica
F - Eph 312,81 kWh/m² anno

Panoramica

Nel cuore di Vimercate, in posizione di forte passaggio e grande visibilità, proponiamo in locazione un elegante spazio commerciale già predisposto per attività di ristorazione, situato accanto allo storico Ponte di San Rocco, in Via Burago 6.

L’immobile gode di tre ampie vetrine direttamente su strada, che conferiscono grande luminosità agli ambienti e una visibilità naturale ideale per attrarre la clientela. Una posizione strategica che unisce fascino storico e vivacità urbana.

Il negozio è già allestito con cucina ad uso ristorante (l’allestimento cucina e da acquistare a prezzo agevolato, non viene lasciato in dotazione con la locazione), rendendolo la soluzione perfetta per chi desidera avviare o trasferire la propria attività in uno spazio già pronto e funzionale.

L’edificio è stato oggetto di una completa ristrutturazione nel 2019, che ha valorizzato il carattere storico dell’immobile integrandolo con comfort e impianti moderni. Durante l’intervento si è scelto di conservare e restaurare gli antichi soffitti in legno, mentre sono state riportate alla luce le originali pareti del XVIII secolo, realizzate in mattoni e pietra a vista, elementi che oggi conferiscono agli ambienti un’atmosfera autentica e di grande fascino.

La proprietà offre inoltre impianti nuovi e certificati, riscaldamento autonomo e impianto di climatizzazione, garantendo comfort e funzionalità per l’attività.

Una soluzione ideale per ristoranti, bistrot, wine bar o locali di nuova concezione, dove il carattere storico delle finiture si fonde con la modernità degli impianti, creando un ambiente unico e suggestivo.

Uno spazio capace di raccontare storia e atmosfera, perfetto per dare vita a un progetto gastronomico di qualità in una delle zone più caratteristiche di Vimercate.

 

 

 

 

 

CODICE ANNUNCIO: NEG.VIMERCATE-IZ1680A

Servizi

impianto di riscaldamento
Impianto di condizionamento / raffrescamento
Impianto elettrico
Cantina

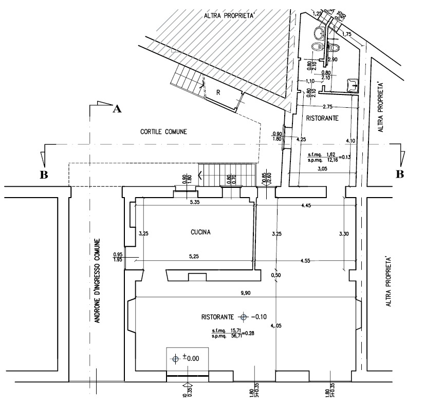
Planimetrie