CARNATE- AMPIO NEGOZIO CON TRE VETRINE IN VENDITA, 141 MQ CON DOPPI SERVIZI, ARCHIVIO E DUE INGRESSI

Carnate, Italia, 20866

Dettagli immobile

Categoria
Business
Tipologia
Negozio
Anno di costruzione / Ristrutturazione
2000
Piano
1
Locali
Open Space
Classe energetica
C- EpH 252,65

Descrizione

Proposto dal Geom. Stefano Tronca, perito ed agente immobiliare di Siacasa Immobiliare, in vendita a Carnate ampio negozio di 141 mq, situato in un contesto moderno e in posizione strategica. La zona è ben servita e facilmente raggiungibile sia dal centro paese che dalle arterie principali, con ampia disponibilità di parcheggi nelle immediate vicinanze.

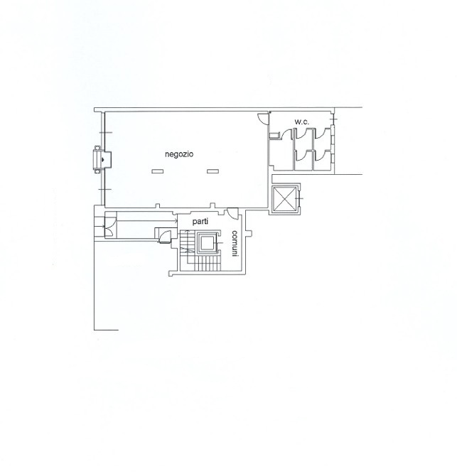
L’immobile, dotato di tre vetrine fronte strada, offre una grande visibilità e si sviluppa in un unico ambiente open-space, ideale per attività commerciali, studi professionali o showroom. Un disimpegno conduce a doppi servizi igienici e a un locale archivio/deposito, garantendo funzionalità e praticità per ogni tipo di attività.

Presenta inoltre due ingressi distinti, di cui uno condominiale sul retro, utile per carico/scarico o accessi separati per clienti e personale.

Gli impianti sono già presenti, ma da verificarne il funzionamento secondo le esigenze del futuro acquirente.

Il prezzo di vendita è di 110.000 euro oltre IVA.

Per informazioni e sopralluoghi, contattare direttamente il Geom. Stefano Tronca di Siacasa Immobiliare.

 

 

Codice Annuncio: UFF.CARNATE-TS110V

NEG.CARNATE-TS110V

Planimetrie

Immobili simili