NUOVA COSTRUZIONE – APPARTAMENTO PANORAMICO IN MINI PALAZZINA DI 6 UNITA’ IN VENDITA AD INVERIGO

Monte Sabotino, Inverigo

Dettagli immobile

Categoria
Residenziale
Tipologia
Appartamento
Anno di costruzione / Ristrutturazione
2025
Piano
Primo
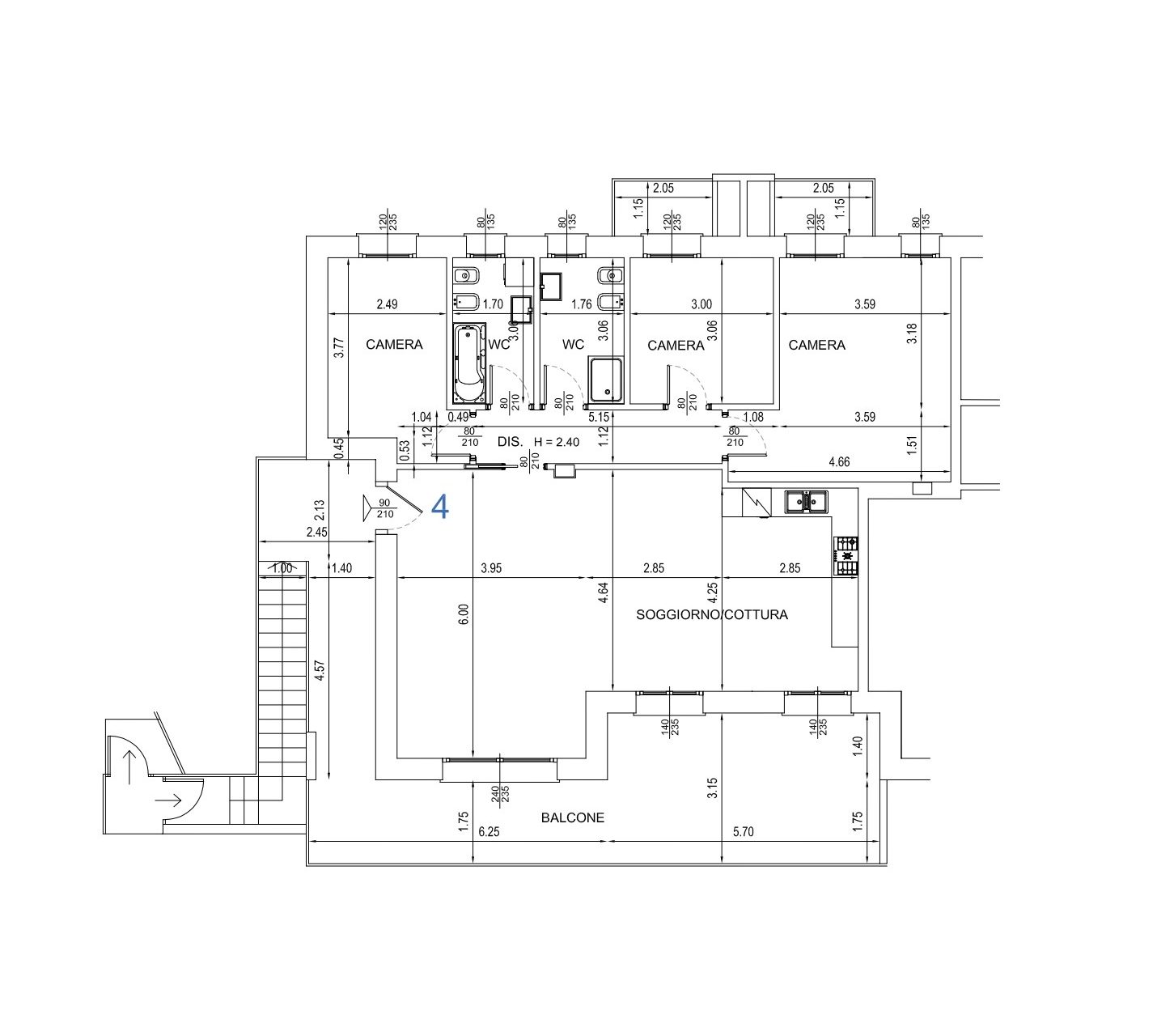
Locali
4
Area / Giardino mq.
Terrazzo 45,60
Posti auto
Box Doppio 52,00
Classe energetica
A4 - Eph 52,08

Descrizione

Nuova costruzione – Appartamento panoramico in mini palazzina da 6 unità

In posizione centrale e rialzata, con vista panoramica e ottima esposizione, proponiamo in pronta consegna un esclusivo appartamento al primo e ultimo piano di una raffinata mini palazzina di sole sei unità abitative.

Libero su tre lati, l’immobile si distingue per l’ampiezza degli spazi e la luminosità degli ambienti, con un grande terrazzo che abbraccia due lati della zona giorno, creando una continuità armoniosa tra interno ed esterno per un totale di 45,60 m² di terrazzi.

La zona giorno è ampia e accogliente, con cucina a vista e possibilità di creare una cucina abitabile grazie alle ampie finestrature che si affacciano sul terrazzo perimetrale.
Dal disimpegno si accede alla zona notte, composta da:

  • camera matrimoniale con balcone privato,
  • due bagni finestrati,
  • una cameretta con balcone,
  • una seconda cameretta ideale anche come studio.

La palazzina in classe energetica A4 è realizzata con tecnologie costruttive di ultima generazione, garantendo il massimo comfort abitativo e un’elevata efficienza energetica:

  • Pompa di calore individuale,
  • Impianto fotovoltaico privato da 3,5 kW,
  • Cappotto esterno con tavolato ad alta densità,
  • Isolamenti acustici e termici di alto livello,
  • Predisposizione per impianto di raffrescamento idronico,
  • Predisposizione per impianto di VMC canalizzata individuale,
  • Predisposizione antifurto volumetrico e perimetrale.

Gli interni sono completamente personalizzabili: il cliente potrà scegliere finiture e materiali da capitolato o extra capitolato, con l’assistenza diretta dello studio di architettura progettista e proprietario dell’immobile, per creare un’abitazione su misura.

Completa la proprietà una comoda autorimessa di 52 m², dotata di portone sezionale motorizzato e collegamento elettrico diretto con l’appartamento.

 

 

CODICE ANNUNCIO: 4LOC.INVERIGO-IZ440V

Servizi

impianto di riscaldamento
Impianto elettrico
Balcone / terrazzo

Planimetrie

Immobili simili