OCCASIONE UNICA DI INVESTIMENTO IN VENDITA A BESANA BRIANZA

34, Via Giacomo Matteotti, Besana in Brianza, Italia, 20842

Dettagli Principali

Categoria
Residenziale
Tipologia
Appartamento
Anno di costruzione / Ristrutturazione
Da Ristrutturare
Piano
Su Due Livelli

Panoramica

Porzione di corte con progetti approvati per la realizzazione di appartamenti

Un’opportunità rara per investitori e privati

In Besana Brianza proponiamo in vendita una porzione di corte parzialmente già demolita, pronta a trasformarsi nel tuo prossimo successo immobiliare. Questa soluzione, unica nel suo genere, offre la possibilità di valorizzare un immobile in un contesto esclusivo e già apprezzato.

Descrizione dell’immobile

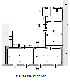
La proprietà dispone di 213 m² distribuiti su due livelli, con progetti di ristrutturazione già approvati. È l’ideale per chi desidera realizzare due o più appartamenti, perfetti sia per una rivendita profittevole che per una locazione a reddito garantito.

Contesto accogliente

L’immobile si inserisce all’interno di un cortile privato, dove le altre due porzioni sono già state ristrutturate con gusto da chi vi abita, creando un’atmosfera raffinata e armoniosa. Un ambiente che unisce il fascino della tradizione alla comodità moderna, offrendo una cornice ideale per soluzioni abitative ricercate.

Un investimento dal potenziale sicuro

Questa proposta rappresenta la scelta perfetta per piccole imprese o investitori privati che vogliono distinguersi sul mercato. La posizione strategica e la possibilità di sviluppo garantiscono ottime prospettive di crescita e ritorno economico. Con spazi ampi e versatili, potrai creare immobili di valore in una delle zone più apprezzate della Brianza.

Prezzo imbattibile: €.69.000,00

Il tutto a un prezzo di soli €.69.000,00: un’occasione irripetibile che rende questa soluzione esclusiva e senza paragoni nel mercato locale. Non lasciarti sfuggire questa opportunità: il primo passo verso il tuo prossimo successo immobiliare è qui.

Chi primo arriva, meglio alloggia: cogli l’attimo e contattaci subito per maggiori informazioni!

 

 

CODICE ANNUNCIO: RUSTICO.BESANA-IZ69V

Planimetrie