RARITA’! TRILOCALE CON GIARDINO PRIVATO IN ELEGANTE CONTESTO IN VENDITA A MEZZAGO

33, Via XXV Aprile, Mezzago, Lombardia, 20883

Dettagli immobile

Categoria
Residenziale
Tipologia
Appartamento
Anno di costruzione / Ristrutturazione
2010
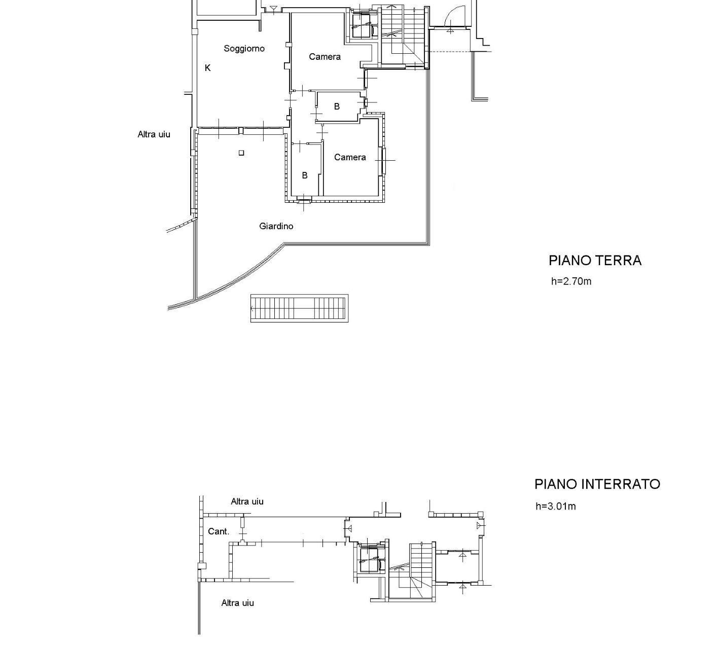
Piano
Terra
Locali
3
Area / Giardino mq.
70
Posti auto
Box Singolo
Classe energetica
C - Eph: 81,77

Descrizione

In un elegante complesso residenziale del 2010, nato da un progetto architettonico che unisce armoniosamente linee moderne e dettagli classici, proponiamo in vendita un raro trilocale con giardino privato, vero gioiello del mercato immobiliare.

L’appartamento, di generosa metratura (97,00mq), si distingue per spazi pensati per il comfort e la qualità della vita. L’ampia zona giorno con cucina a vista si apre su un portico coperto di 20,00mq e su un giardino privato di 70,00mq: un angolo verde riservato e silenzioso, perfetto per vivere momenti di relax o convivialità all’aperto.

La zona notte è ben distribuita, con due camere matrimoniali, due bagni finestrati e comodo disimpegno.

La proprietà si completa con una cantina di 6,00mq e un box auto di 6,60m x 3,10m, ideale anche per SUV o veicoli di grandi dimensioni.

Dotazioni e finiture:

  • Infissi in legno con doppi vetri
  • Tapparelle motorizzate
  • Porta blindata
  • Videocitofono
  • Predisposizione per aria condizionata e antifurto

La palazzina, curata e in perfetto stato di manutenzione, non necessita di alcun intervento.

Un’opportunità irripetibile per chi cerca stile, funzionalità e un’oasi verde privata a due passi dai servizi. Contattaci per una visita!

 

 

 

CODICE ANNUNCIO: 3LOC.MEZZAGO-IZ232V

Servizi

impianto di riscaldamento
Ascensore
Impianto elettrico
Balcone / terrazzo
Cantina

Planimetrie

Immobili simili