Cornate d’Adda (MB) – UFFICIO CON BALCONI E ACCESSO INDIPENDENTE

Cornate d'Adda, Italia, 20872

Dettagli immobile

Categoria
Business
Tipologia
Ufficio
Piano
Rialzato
Locali
6
Classe energetica
Classe energetica in attesa di certificazione

Descrizione

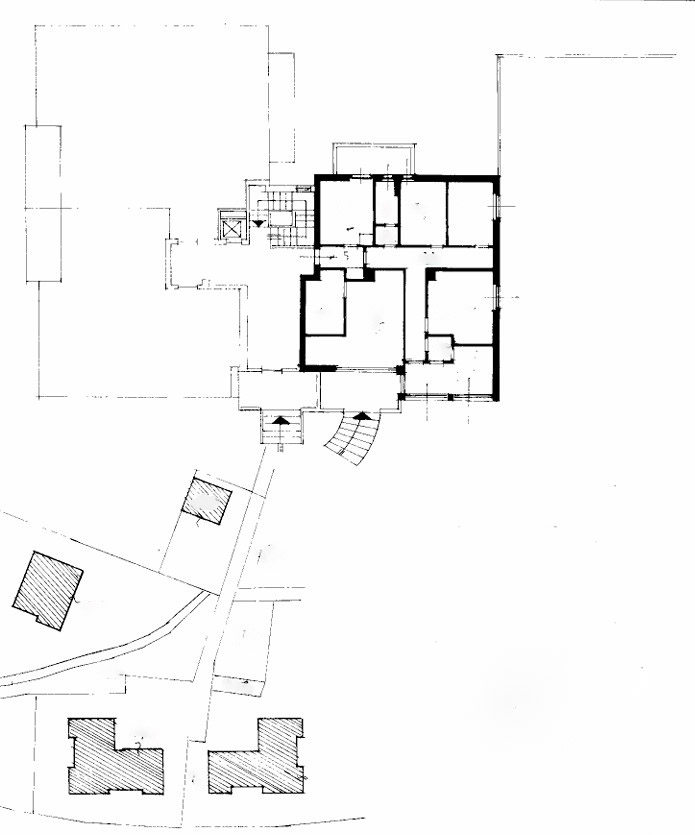
A Cornate d’Adda, il geom. Stefano Tronca di Siacasa con sede a Bellusco propone in vendita un ufficio di circa 116 m² commerciali, collocato al piano rialzato di un edificio civile inserito in un contesto residenziale tranquillo e ben servito.

L’immobile è dotato di accesso indipendente e dispone di balconi per complessivi circa 16,5 m², che donano luminosità agli ambienti. Attualmente è utilizzato come studio medico, caratteristica che ne conferma la funzionalità immediata per attività professionali e sanitarie. Su richiesta, vi è inoltre la possibilità di ritirare unitamente le attrezzature già presenti, agevolando chi desidera subentrare senza dover sostenere ulteriori costi di avvio.

L’unità si presenta nello stato originario di costruzione, elemento che permette al futuro acquirente di intervenire con un adeguamento agli standard moderni di comfort e funzionalità, pur mantenendo la possibilità di un utilizzo immediato anche nelle condizioni attuali.

Il riscaldamento è autonomo e la buona disponibilità di parcheggio in zona rappresenta un ulteriore vantaggio pratico per clienti e collaboratori. È inoltre da valutare la possibilità di un cambio di destinazione d’uso, che ne amplifica le prospettive anche in ottica residenziale.

La posizione è particolarmente strategica, grazie alla vicinanza al centro commerciale Globo e ai principali assi di collegamento verso Monza, Bergamo e Milano.

Il prezzo di vendita è di 160.000 euro. Una proposta con ottime prospettive di valorizzazione, ideale per chi cerca uno spazio versatile, già funzionante come studio medico, ben collegato e con ampie possibilità di trasformazione o utilizzo immediato.

 

UFF.CORNATE-TS160V

 

Servizi

impianto di riscaldamento
Impianto di condizionamento / raffrescamento
Impianto elettrico
Balcone / terrazzo

Planimetrie

Immobili simili