L’INDIPENDENZA CHE HAI SEMPRE SOGNATO, IL COMFORT CHE MERITI OGNI GIORNO. VILLA IN VENDITA A BUSNAGO

19, Via Belgioioso, Busnago, Italia, 20883

Dettagli immobile

Categoria
Residenziale
Tipologia
Villa Bifamiliare
Anno di costruzione / Ristrutturazione
1981/2023
Piano
Terra - Su Due Livelli
Locali
3
Area / Giardino mq.
Giardino 310
Posti auto
Box Doppio
Classe energetica
D

Descrizione

All’interno di un contesto tranquillo e riservato, ti presentiamo una porzione di villetta bifamiliare unica nel suo genere, avvolta da un ampio giardino privato di 310,00mq, che abbraccia la casa su tre lati e regala privacy, luce e quella sensazione di serenità che solo il verde sa offrire.

Realizzata nel 1981 e curata con amore nel corso degli anni, questa soluzione si distingue per la sua solidità e per la sua perfetta manutenzione. Nel 2014 è stato creato il vano ascensore privato che collega in modo elegante e pratico il piano terra al primo piano. Nel 2018 l’intera casa è stata rinnovata con finestre in pvc, inferiate e persiane nuove in alluminio, mentre la facciata è stata rifatta nel 2023, donando all’immobile un aspetto fresco ed attuale.
Una casa pronta da vivere, senza pensieri.

Competa di impianto di climatizzazione e di antifurto volumetrico esterno sull’intero perimetro di casa.

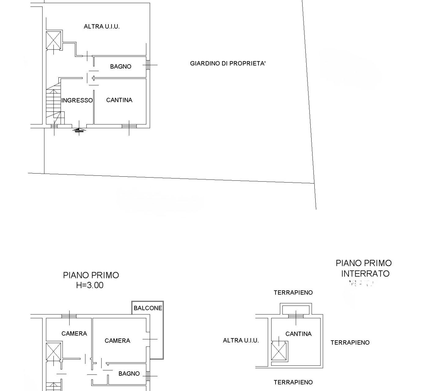
Gli spazi

Piano terra – 56,00mq di abitazione
Ad accoglierti, un ingresso ampio e funzionale con scala a vista e un locale hobby di 17 mq, perfetto come studio, sala giochi, camera ospiti o area relax. Completa il piano un bagno di servizio, un box doppio di 33,00mq  con basculante motorizzata, oltre a una cantina al piano interrato di ulteriori 16,00mq.

Primo piano – 90,00 mq di abitazione
Il cuore della casa si apre in un luminoso soggiorno con cucina e balcone, ideale per momenti di convivialità. La zona notte offre una camera da letto, una camera matrimoniale con balcone privato, e un bagno ben rifinito.
Complessivamente, i due balconi sviluppano 21,00mq.

Questa villa è la scelta perfetta per chi cerca comfort, indipendenza e un’abitazione subito pronta da vivere, con ampi spazi dentro e fuori, in una cornice di riservatezza e tranquillità.

Lasciati conquistare dal suo fascino senza tempo.
La tua nuova casa ti sta aspettando

 

 

 

CODICE ANNUNCIO:VILLA.BUSNAGO-IZ268V

Servizi

impianto di riscaldamento
Impianto di condizionamento / raffrescamento
Ascensore
Impianto elettrico
Impianto di allarme
Balcone / terrazzo
Cantina

Planimetrie

Immobili simili