VILLA SINGOLA CON AMPI SPAZI, VISTA APERTA E TECNOLOGIE DI ULTIMA GENERAZIONE. IN VENDITA A SULBIATE

12, Via Biffi, Italia, 20884

Dettagli Principali

Categoria
Residenziale
Tipologia
Villa
Anno di costruzione / Ristrutturazione
1969/2024
Piano
Su Due Livelli
Locali
4
Area / Giardino mq.
Privato 520 Mq
Posti auto
Box Doppio
Classe energetica
D

Panoramica

Ideale per due nuclei familiari o per chi cerca ampi spazi

Immersa nella tranquillità e circondata dal verde, questa villa singola si distingue per la sua architettura solida, gli ampi spazi interni e una vista aperta su campi e boschi che regala serenità ad ogni sguardo.

Disposta su due piani fuori terra, la casa offre una superficie complessiva generosa e la possibilità di essere suddivisa in due unità abitative indipendenti, ideale per chi desidera condividere la propria abitazione con genitori o figli, mantenendo al contempo privacy e autonomia.

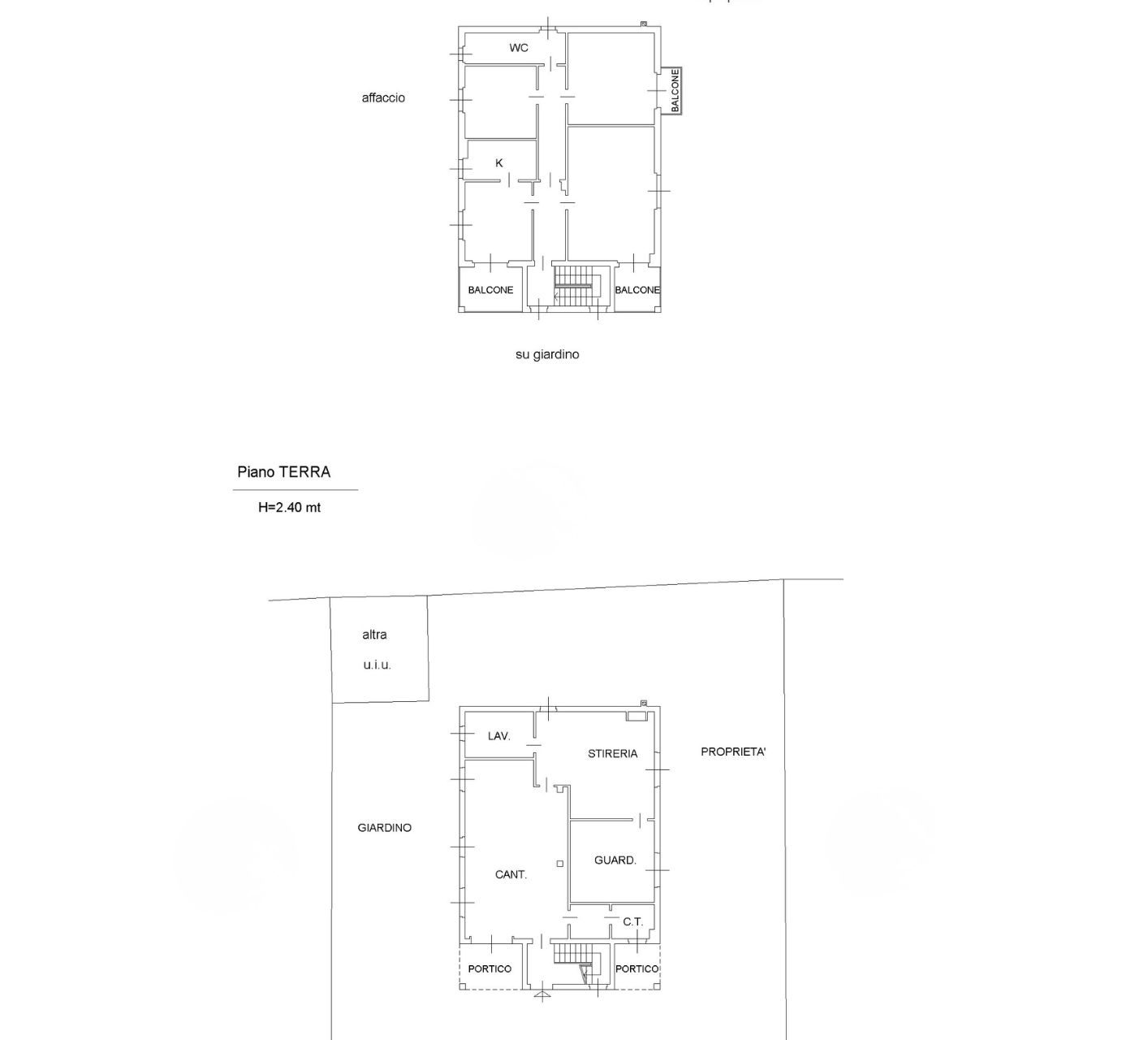
Al piano terra, di 156,00mq, trovano spazio un’ampia autorimessa tripla, una taverna accogliente con bagno/lavanderia, una stanza ospiti /hobby ed i locali tecnici.
Un ambiente versatile, perfetto per momenti conviviali, per accogliere amici o trasformarsi in una comoda abitazione autonoma.

Al primo piano, raggiungibile tramite scala in muratura, si sviluppa l’abitazione principale di 145,00mq composta da:

  • Ingresso
  • Ampio soggiorno con terrazzo, luminoso e affacciato sul verde
  • Cucinino con sala da pranzo e secondo terrazzo
  • Due camere matrimoniali, di cui una con balcone
  • Bagno finestrato

La zona giorno, esposta a sud e ovest, gode di una splendida luce naturale e di un panorama aperto e rilassante.

Comfort e tecnologia
L’immobile, realizzato nel 1969, è stato parzialmente ristrutturato nel 2024, con interventi mirati all’efficienza energetica e al comfort:

  • Infissi nuovi in alluminio e PVC di alta gamma
  • Tapparelle in alluminio coibentate
  • Zanzariere
  • Impianto fotovoltaico da 9 kW con batterie d’accumulo da 10 kW
  • Caldaia ibrida a gas e pompa di calore
  • Impianto di antifurto
  • Wall Box per ricarica auto elettrica

All’esterno, un giardino di 520,00mq circonda la villa sui quattro lati, offrendo privacy, spazio e angoli di quiete.
A completare la proprietà, un ulteriore box doppio fuori terra di 30,00mq.

na casa che unisce tradizione e innovazione, ampi spazi e risparmio energetico, perfetta per chi sogna indipendenza e qualità della vita senza rinunciare alla comodità.

 

 

CODICE ANNUNCIO: VILLA.SULBIATE-IZ388V

Servizi

impianto di riscaldamento
Impianto di condizionamento / raffrescamento
Impianto elettrico
Balcone / terrazzo
Cantina

Planimetrie

Immobili Simili