APPARTAMENTO PIANO PRIMO 5 – RESIDENZA “SOLE E LUNA”

8, Via San Francesco D'Assisi, Montevecchia, Italia

Dettagli Principali

Categoria
Residenziale
Tipologia
Appartamento
Anno di costruzione / Ristrutturazione
2027
Piano
Primo
Locali
3
Area / Giardino mq.
Terrazzo 20,00
Classe energetica
A4

Panoramica

APPARTAMENTO PIANO PRIMO 5 – RESIDENZA “SOLE E LUNA”
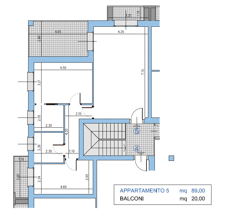
Trilocale con terrazzo e balcone – 89 mq interni + 20 mq di sfoghi esterni

Situato al primo e ultimo piano, libero su tre lati, l’appartamento si sviluppa su 89 mq interni, con esposizione nord, est e ovest, che assicura una piacevole alternanza di luce durante tutta la giornata e un clima sempre equilibrato in ogni ambiente.

La disposizione prevede:

  • Un’ampia zona giorno con cucina a vista, accogliente e ben integrata, che si apre su un terrazzo vivibile, perfetto per colazioni all’aperto o momenti di relax;
  • Un disimpegno centrale che garantisce una buona separazione tra zona giorno e notte;
  • Due camere da letto, di cui una cameretta con accesso a un balcone privato, ideale anche come studio o stanza ospiti;
  • Due bagni finestrati, moderni e funzionali, con finiture curate nei minimi dettagli.

Complessivamente, terrazzo e balcone misurano 20 mq, offrendo due spazi esterni ben distinti, pensati per vivere l’esterno in piena libertà.

Incluso nel prezzo, viene offerto gratuitamente il servizio dell’architetto dello studio progettista, che accompagnerà l’acquirente nella definizione delle divisioni interne e delle finiture, trasformando l’appartamento in una casa su misura.

Contatta il nostro studio per fissare un appuntamento personalizzato: potrai visionare i progetti, approfondire ogni dettaglio impiantistico e conoscere direttamente i progettisti — nonché proprietari e realizzatori della tua futura casa.

Il tuo nuovo spazio di vita, tra natura, indipendenza e qualità.

Appartamento Piano Primo 5 – eleganza funzionale, comfort su misura, un nuovo modo di vivere a Montevecchia.

RESIDENZA “SOLE E LUNA” – MINI PALAZZINA DI APPARTAMENTI IN VILLA A MONTEVECCHIA (LC)
Classe energetica A4 | Comfort, natura e indipendenza

Nel cuore delle colline brianzole, nella posizione più strategica e riservata del comune di Montevecchia, nasce “Sole e Luna”, una nuova residenza di charme immersa nella quiete, tra i profumi e i colori del Parco del Curone.

Un luogo dove la luce del giorno e la tranquillità della sera si incontrano in un equilibrio perfetto — proprio come il nome suggerisce — offrendo uno stile di vita autentico e rilassato, a contatto con la natura ma a pochi minuti da ogni servizio.

La residenza è composta da una mini-palazzina di appartamenti in villa, con sole sei unità abitative pensate per chi cerca privacy, indipendenza e qualità costruttiva:

  • Tre appartamenti al piano terra, ciascuno con ingresso autonomo e giardino privato, ideali per vivere gli spazi esterni in totale libertà.
  • Tre appartamenti al primo piano, con tripla esposizione e ampie terrazze, per godere della luce naturale e della vista sulle colline circostanti.

A completare la residenza, è prevista la possibilità di acquistare box autorimessa singoli di ampia metratura oppure doppi, disponibili in diverse dimensioni.

A firmare il progetto è lo stesso studio di progettazione promotore dell’iniziativa, da decenni specializzato non solo in progettazioni conto terzi, ma anche nella realizzazione diretta di mini-palazzine di alta qualità, costruite con la stessa cura che si avrebbe per la propria casa.

Caratteristiche tecniche di eccellenza – Classe A4 garantita:

  • Impianto autonomo in pompa di calore, con riscaldamento a pavimento e predisposizione per il raffrescamento ad aria.
  • Ventilazione Meccanica Controllata (VMC) puntuale in ogni ambiente, per un’aria sempre pulita e il giusto controllo dell’umidità.
  • Infissi in PVC con taglio termico-acustico di fascia alta, montati su monoblocchi di primaria marca, con tapparelle motorizzate in alluminio coibentato.

Ogni dettaglio, ogni finitura, ogni scelta impiantistica è pensata con attenzione e passione, come se a viverci dovessimo essere noi stessi.

“Sole e Luna” è molto più di una nuova costruzione: è il tuo angolo di benessere a Montevecchia.

 

 

 

CODICE ANNUNCIO: 3LOC.MONTEVECCHIA1-IZ316V

 

Servizi

impianto di riscaldamento
Impianto elettrico
Balcone / terrazzo

Planimetrie

Immobili Simili