APPARTAMENTO PIANO PRIMO 4 – RESIDENZA “SOLE E LUNA”

8, Via San Francesco D'Assisi, Montevecchia, Italia

Dettagli Principali

Categoria
Residenziale
Tipologia
Appartamento
Anno di costruzione / Ristrutturazione
2027
Piano
Primo
Locali
3
Area / Giardino mq.
Terrazzo 17,40
Classe energetica
A4

Panoramica

APPARTAMENTO PIANO PRIMO 4 – RESIDENZA “SOLE E LUNA”
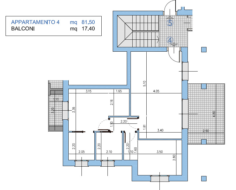
Trilocale con terrazzo e balcone – 81,5 mq interni + 17,4 mq di sfoghi esterni

Posto al primo ed ultimo piano della mini-palazzina, l’appartamento si sviluppa su una superficie interna di 81,5 mqed è libero su tre lati, con una splendida esposizione est, sud e ovest che garantisce luce naturale per tutto il giorno e un’ottima ventilazione.

La disposizione prevede:

  • Un’accogliente zona giorno open space con cucina a vista e accesso diretto al terrazzo vivibile, perfetto per pranzi all’aperto e momenti di relax;
  • Un disimpegno funzionale che separa la zona notte;
  • Due camere da letto, tra cui una matrimoniale con cabina armadio dedicata;
  • Due bagni, entrambi moderni e ben rifiniti;
  • Un balcone aggiuntivo accessibile dalla zona notte.

Complessivamente, terrazzo e balcone misurano 17,4 mq, offrendo spazi esterni da vivere quotidianamente in ogni stagione, affacciati su un contesto verde e silenzioso.

Come per ogni appartamento della residenza, anche il Piano Primo 4 è completamente personalizzabile: incluso nel prezzo, è offerto gratuitamente il servizio dell’architetto dello studio progettista, che accompagnerà l’acquirente nella definizione delle divisioni interne e delle finiture, rendendo ogni spazio unico e su misura.

Contatta il nostro studio per fissare un appuntamento personalizzato: potrai visionare i progetti, approfondire ogni dettaglio impiantistico e conoscere direttamente i progettisti — nonché proprietari e realizzatori della tua futura casa.

Il tuo nuovo spazio di vita, tra natura, indipendenza e qualità.

Appartamento Piano Primo 4 – l’eleganza di un ultimo piano, la libertà della luce su tre lati, la qualità di una casa che ti somiglia.

 

RESIDENZA “SOLE E LUNA” – MINI PALAZZINA DI APPARTAMENTI IN VILLA A MONTEVECCHIA (LC)
Classe energetica A4 | Comfort, natura e indipendenza

Nel cuore delle colline brianzole, nella posizione più strategica e riservata del comune di Montevecchia, nasce “Sole e Luna”, una nuova residenza di charme immersa nella quiete, tra i profumi e i colori del Parco del Curone.

Un luogo dove la luce del giorno e la tranquillità della sera si incontrano in un equilibrio perfetto — proprio come il nome suggerisce — offrendo uno stile di vita autentico e rilassato, a contatto con la natura ma a pochi minuti da ogni servizio.

La residenza è composta da una mini-palazzina di appartamenti in villa, con sole sei unità abitative pensate per chi cerca privacy, indipendenza e qualità costruttiva:

  • Tre appartamenti al piano terra, ciascuno con ingresso autonomo e giardino privato, ideali per vivere gli spazi esterni in totale libertà.
  • Tre appartamenti al primo piano, con tripla esposizione e ampie terrazze, per godere della luce naturale e della vista sulle colline circostanti.

A completare la residenza, è prevista la possibilità di acquistare box autorimessa singoli di ampia metratura oppure doppi, disponibili in diverse dimensioni.

A firmare il progetto è lo stesso studio di progettazione promotore dell’iniziativa, da decenni specializzato non solo in progettazioni conto terzi, ma anche nella realizzazione diretta di mini-palazzine di alta qualità, costruite con la stessa cura che si avrebbe per la propria casa.

Caratteristiche tecniche di eccellenza – Classe A4 garantita:

  • Impianto autonomo in pompa di calore, con riscaldamento a pavimento e predisposizione per il raffrescamento ad aria.
  • Ventilazione Meccanica Controllata (VMC) puntuale in ogni ambiente, per un’aria sempre pulita e il giusto controllo dell’umidità.
  • Infissi in PVC con taglio termico-acustico di fascia alta, montati su monoblocchi di primaria marca, con tapparelle motorizzate in alluminio coibentato.

Ogni dettaglio, ogni finitura, ogni scelta impiantistica è pensata con attenzione e passione, come se a viverci dovessimo essere noi stessi.

“Sole e Luna” è molto più di una nuova costruzione: è il tuo angolo di benessere a Montevecchia.

 

 

 

CODICE ANNUNCIO: 3LOC.MONTEVECCHIA-IZ288V

 

Servizi

impianto di riscaldamento
Impianto elettrico
Balcone / terrazzo

Planimetrie

Immobili Simili